Die Wohnungen
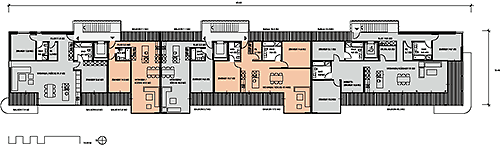
Nr. 1039: Erdgeschoss-Grundriss

Nr. 1039: 1. und 2. OG-Grundriss

Nr. 1039: Attika-Grundriss

Nr. 1033: 1. und 2. OG-Grundriss